欢迎来到青岛欧森达船舶通用设备有限公司的官方网站

CDZ系列舰船用低噪声轴流通风机


1、概述

CDZ系列舰船用低噪声轴流通风机(以下简称通风机)是一种节能、低噪声舰船用产品。具有效率高、噪声低、运转平稳和满足舰船用条件要求等特点。它适用于各种舰船的通风换气,也适用于与其它相适应的场合。

2、特点

通风机采用变环量法设计。根据通风机的参数选取合理的变环量系数,合理分配叶片各个截面上的特性速度和长度等,叶片采用阔形园弧叶片,从而充分利用叶尖处的高圆周速度,使通风机具有效率高、噪声低、流量系数大、重量轻等特点。

通风机在设计和制造过程中充分考虑到舰船用的特殊条件要求:叶轮经过严格的动平衡校正、超速试验,故通风机具有耐蚀性好、抗摇摆、抗冲击、振动小、运转平稳和安全可靠等特点。

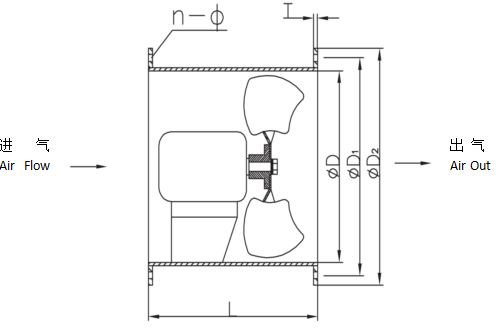
3、结构型式

叶轮由铝板模压成的叶片与钢制镀锌的轮盘铆接而成,机壳与支架等由普通钢板制成,并经防腐处理。

通风机制成从电动机端正视,叶轮按逆时针方向旋转。

由于通风机叶片由铝板制成,故适用于低压、大流量的场合。

通风机可配用船用交流电动机。

4、通风机适用条件

通风机可以在以下条件长期正常地工作:

环境温度:-25~+55℃(+50℃);

最大相对湿度:95%

横摇:±45°(周期8~12S);

纵摇:15°(周期5~7S);

横倾:±15°;

纵倾:±10°;

振动:有;

冲击;有。



型号
Model

流量
Flow
 rate
m³/h

全压
Total
pressure
pa

转速
Speed
r/min

噪音
Noise
dB(A)

电动机
Motor

外形尺寸mm
Dimensions

重量
Weight
kg

频率
Hz
Freq

功率
Kw

Power

型号
Model

D

D1

D2

L

T

n*t

CDZ-25-2

1800-2000

215-192

2900

69

50

0.25

YS6322-H

254

280

298

330

5

8*ф

15

(200-20)

CDZ-30-2

3600-4000

290-245

2900

74

50

0.55

YS7122-H

305

345

381

330

5

8*ф10

26

(30-25)

CDZ-30-4

1800-2000

75-55

1460

60

50

0.09

YS5624

22

(8-6)

CDZ-40-4

4000-5000

155-135

1460

71-72

50

0.55

Y801-4-H

405

445

481

430

8

8*ф12

43

(16-14)

CDZ-50-4

8000-9500

235-205

1460

76-78

50

0.75

Y802-4-H

506

560

602

450

8

12*ф15

53

(24-21)

CDZ-50-6

5500-6500

108-98

970

67-69

50

0.55

Y802-6-H

45.5

(11-10)

CDZ-60-4

15000-17000

370-320

1460

81-82

50

2.2

Y100L-4-H

606

660

712

550

8

12*ф15

92

(35-33)

CDZ-60-6

10000-11500

155-145

970

72-73

50

0.75

Y90S-6-H

78

(16-15)

CDZ-70-4

24000-27000

470-420

1460

85-86

50

4

Y112M-4-H

706

760

814

600

10

16*ф15

85

(48-43)

CDZ-70-6

16000-18000

205-185

970

76-77

50

1.5

Y100L-6-H

73

(21-19)

CDZ-80-6

24000-27000

265-245

970

81-82

50

3

Y132S-6-H

807

870

925

720

10

16*ф15

103

(27-25)


CDZ系列舰船用低噪声轴流通风机.pdf